SH-217-623

Продам 2-поверховий таунхаус

Розташування: Ужгород, Червениця, Карпатська вул., 10
2 Кімнат
87 м2
2 сот.
Ціна
90 000 $
Комісія:
2%

Інформація

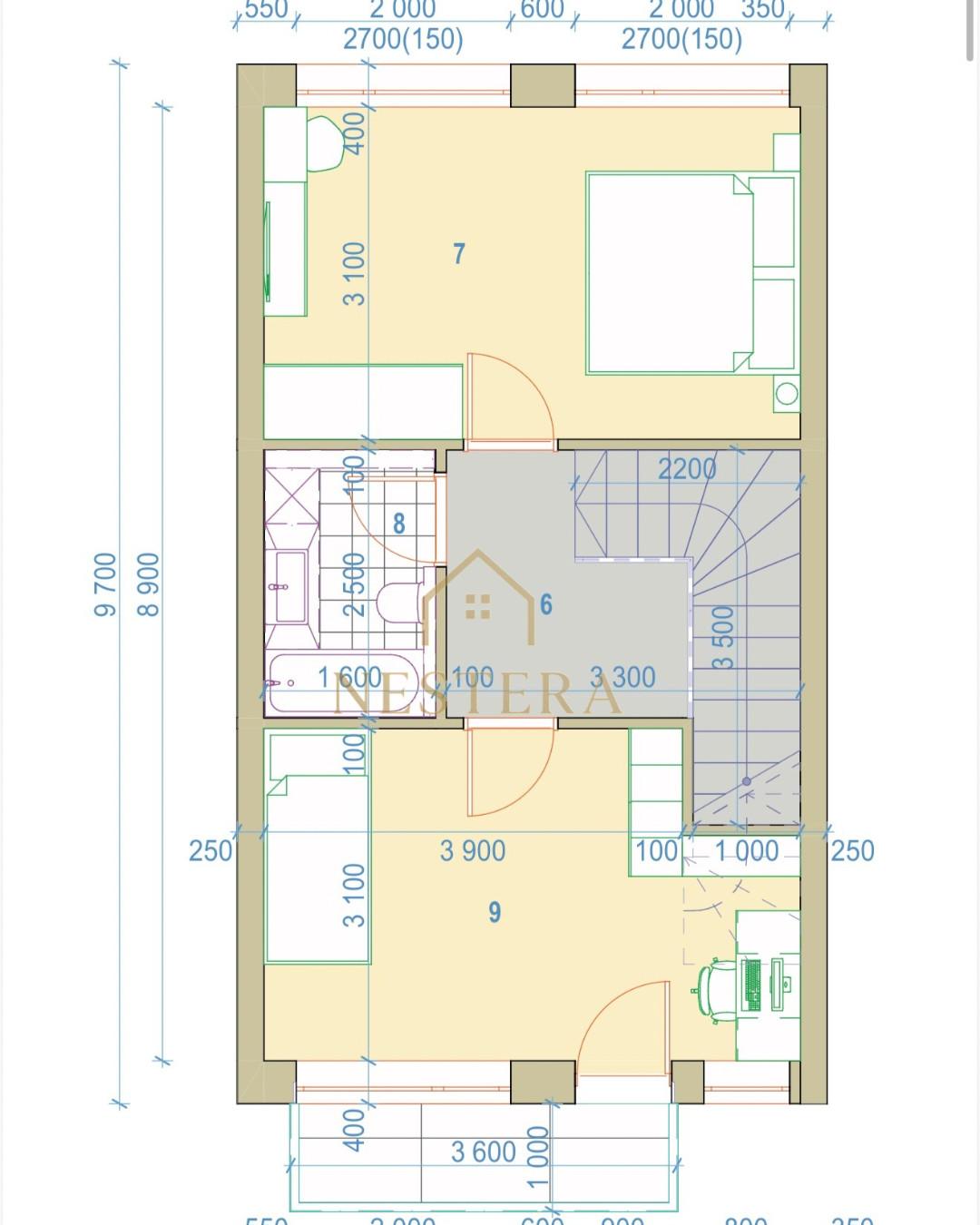
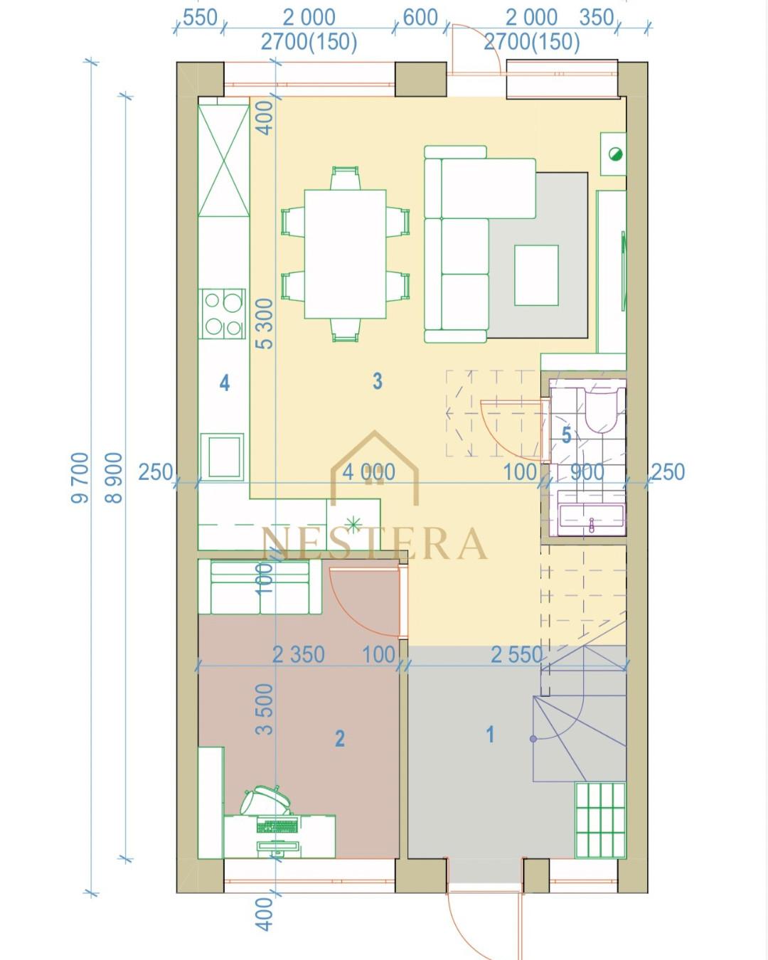
Продаж сучасного котеджу в районі Червениця | 88 м²

Пропонується до продажу двоповерховий котедж у престижному та затишному районі Червениця з гарним краєвидом та зручною під’їзною дорогою.

Характеристики будинку:
• Загальна площа — 88 м²
• Два поверхи
• Вільне планування — без перестінок
• Залізобетонне перекриття між 1 та 2 поверхом
• Фасад утеплений пінопластом 10 см
• Покрівля — металочерепиця

Комунікації:
• Центральний водопровід
• Каналізація — септик
• Електричне опалення

Ділянка:
• 2 сотки землі
• Гарний краєвид
• Асфальтований під’їзд

Умови продажу:
Можливий продаж по державних програмах єОселя згідно оновленої постанови.
Право власності оформлене менше 3 років — виникає податок.

Ціна — 90 000 $
Можливий хороший торг для реального покупця.

Ідеальний варіант для життя або інвестиції.
Телефонуйте — організуємо перегляд у зручний для вас час.

Інфраструктура

Побутовий сервіс: парковка перед будинком;
Релаксаційні сервіси: ліс;
90 000 $ вартість об'єкта
1 037 $ ціна за м2
86.78 м2
2 сот.
2 кімнат
2 К-ть поверхів

Параметри

центральна Вода:
немає Газ:
без опалення Опалення:
септик Каналізація:
холодна вода, опалення Лічильники:
3 Висота стелі:
металочерепиця Дах:
цегла Матеріал стін:
комбіновані Матеріал перекриттів:
насип Під’їздна дорога:

Доброустрій

Додатково: панорамні вікна;

Додатково

Утеплення: Зовнішнє;
Власність: приватна;
Дата оновлення інформації: 12.01.2026 15:27;