SH-218-578

Продам будинок

Розташування: Ужгород, Садовий, Радісна вул.
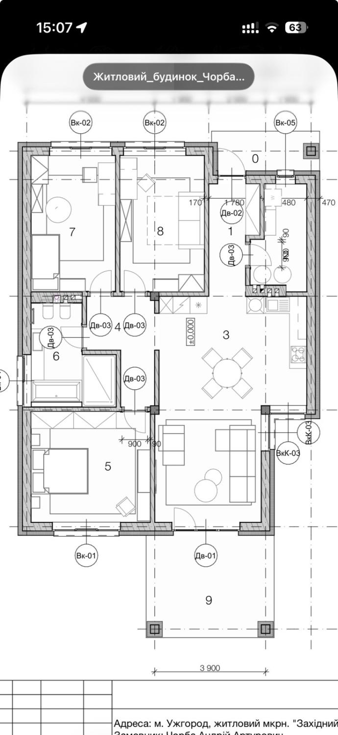
3 Кімнат
129 м2
6 сот.
Ціна
120 000 $
Комісія:
2%

Інформація

Продаж будинку “Американка” в місті.
Ціна: 120 000 $ (договірна)
Продаж від забудовника.
У одному санвузлі вже викладена плитка
По бажанню клієнта будинок може бути повністю відремонтований.
Ціна з ремонтом 135 тис.$
Підходить під єОселя.


Характеристики:
• Площа будинку — 128–129 м²
• Ділянка — 6,3 сотки
• 1 поверх
• 2 санвузли
• Будинок після 2015 року
• Тип — житловий будинок

Будівництво та стан:
• Цегла Porotherm 38 см
• Утеплення — 10 см пінопласт
• Дах — металочерепиця
• Стан — під чистову обробку
• Чистова шпаклівка стін під фарбування
• Тепла підлога
• Чистова розводка електрики
• Вивід димоходу під камін

Комунікації:
• Скважина 35 м
• Власна котельня
• Асфальтований під’їзд

Кадастровий номер:
2110100000:54:001:0856

Будинок готовий до продажу.
Пишіть або телефонуйте — надам деталі та організую перегляд.

Інфраструктура

Банківськи послуги: банкомат;
Побутовий сервіс: супермаркет, аптека, пошта;
120 000 $ вартість об'єкта
930 $ ціна за м2
129 м2
6.30 сот.
3 кімнат
1 К-ть поверхів

Параметри

свердловина Вода:
немає Газ:
одноконтурний котел, електричне Опалення:
септик Каналізація:
холодна вода Лічильники:
2.9 Висота стелі:
металочерепиця Дах:
цегла Матеріал стін:
насип Під’їздна дорога:

Доброустрій

Краєвид із вікна: двір;
Підігрів підлоги: електро;
Водонагрівач: електричний;

Додатково

Утеплення: Зовнішнє;
Покриття ділянки: тротуарна плитка;
Власність: приватна;
Дата оновлення інформації: 02.02.2026 12:11;