SH-219-660

Продам будинок

Розташування: Холмок, Закарпатська область, Ужгородський район, 8 Березня вул., 5
4 Кімнат
153 м2
16 сот.
Ціна
137 000 $
Комісія:
2%

Інформація

Продається американка площею 153 м2, яка будувалась для себе.

Ділянка площею 16 сот землі.

До будинку веде асфальтована дорога, заїзд на ділянку може бути з обох сторін.

Будинок утеплений ватою, вікна кращих виробників.

В будинку вже встановлене полове водяне опалення, виведені траси під кондиціонери та зроблена розводка електрики.

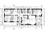
Планування: 4 кімнати, кухня вітальня з виходом на терасу, ванна кімната + гостьовий санвузол та технічне приміщення. Готовий дизайнерський проєкт.

По периметру встановлений паркан.

Комунікації: 30 кВт електрики заведено, є септики, центральна вода, на вулиці є газ.

Район тихий, спокійний та чистий.

Ідеальне місце для великої сімʼї.

До Ужгорода 7 км.

137 000 $ вартість об'єкта
895 $ ціна за м2
153 м2
16 сот.
4 кімнат
1 К-ть поверхів

Параметри

центральна Вода:
можлива газифікація Газ:
автономне, електричне Опалення:
септик Каналізація:
холодна вода, опалення Лічильники:
металочерепиця Дах:
цегла Матеріал стін:
залізобетон Матеріал перекриттів:
асфальт Під’їздна дорога:

Стан об’єкта

Підлога: стяжка;
Стіни: чорнова штукатурка;
Вікна: металопластик;

Доброустрій

Підігрів підлоги: водяний;
Додатково: панорамні вікна;
Безпека: паркан;

Додатково

Покриття ділянки: без покриття;
Дата оновлення інформації: 27.04.2026 10:14;